Beispielhaft einfach planen und konstruieren

Entwerfen und Konstruieren sind das Herzstück von Bauset. Und das so einfach wie nur irgend möglich zu machen ist das Hauptziel des Systems. So steht Ihnen heute ein CAD-System zur Verfügung, mit dem Sie sofort Ergebnisse erzielen ohne dass Sie bei der Funktionalität Abstriche machen müssen.


Bei allen Anfragen über das Bauset stehen zwei Themen im Vordergrund: Können wir uns schnell in das System einarbeiten ? Wie schnell kommen wir bei einem Bauvorhaben zum gewünschten Ergebnis ? Klar, dass diese Fragen dann auch im Focus der Bauset Weiterentwicklung stehen. Heute bietet Ihnen Bauset eine perfekte Abstimmung zwischen den Anforderungen: Schnelle Einarbeitung - Schnelle Ergebnisse - Kompletter Leistungsumfang.


100te Vorlagen - Komplette Symbolbibliotheken - Alles selbst Erweiterbar


Mit Bauset erhalten Sie nicht nur ein anerkannt leistungsstarkes CAD-System. Zum Bauset gehören umfassende Bibliotheken und Vorlagen, die Sie von der ersten Minute an nutzen. Neben den 1000den Symbolen für alle Bereiche der Planung gehören dazu auch Vorlagen für Planköpfe und Planübersichten. Ganze Baugruppen wie Dachformen, Dachaufbauten, Gauben etc. sind hinterlegt und können per Mausklick in die Planung integriert werden.

Alles, was Sie selbst jemals zeichnen/konstruieren können Sie sich selbst per Mausklick als eigene Baugruppe ablegen. So wachsen und individualisieren sich Ihre Kataloge wie von selbst. Gerade im Entwurf sind parametrisierte Baugruppen eine wesentliche Hilfe um zu schnellen und beeindruckenden Ergebnissen zu kommen.

Zusätzlich beschleunigt wird die Konstruktion durch die vielen Automatismen, die das Bauset bietet. Diese Automatismen sollen aber die Arbeit nicht nur beschleunigen, sondern auch Fehlerquellen ausmerzen, die bei "händischen" Überarbeitungen immer wieder zu Ärger führen. Wer z.B. gesehen hat, wie bei einer Änderung der Dachneigung ohne weiteres Zutun bis hin zur neuen Wohnflächenermittlung alles komplett automatisch angepaßt wird, wird Bauset nicht mehr missen wollen.


Wirklich einfache Bedienung ist der Schlüssel zum Erfolg

Sofort Ergebnisse erzielen mit einer Lösung, die Sie spontan verstehen.
image

Konstruieren ohne Grenzen


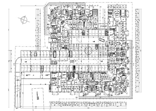
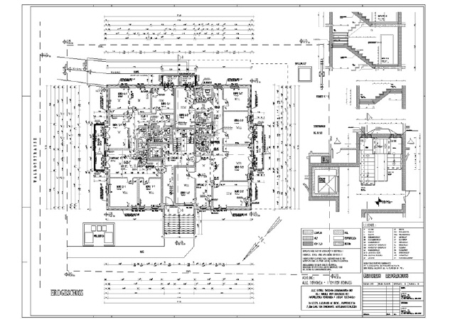
In Bauset gibt es keine Schranken - weder in Hinsicht auf die Größe des Projektes, die Anzahl der Gebäude im Projekt, der Anzahl der Geschosse, Höhenversätze in den Geschossen und so weiter. Egal, ob es sich um eine Einfamilienhaus handelt oder das Großprojekt mit Millionen-Bausumme. In Bauset Architektur wird jede Projektart in jeder Projektgröße über den gesamten Planungsprozess von A-Z abgebildet. Und das nicht nur im Neubau, sondern selbstverständlich auch in der Sanierung. Damit ist das Bauset ein universell nutzbares Werkzeug für alle Achitekten/innen.

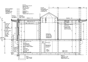
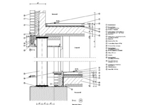
Klar, dass das dann nicht beim Entwurf endet. Selbstverständlich werden mit Bauset alle Zeichnungen erstellt, die Laufe der Projektdurchführung benötigt werden. Vom Bauantrag bis in die Werk- und Detailplanung.

Da sieht man dann, wie wichtig die automatischen Änderungdienste von Bauset sind. Verschieben Sie z.B. eine Wand, so sind alle Folgeanpassungen in allen Plänen vom Entwurfsstand bis hin zur Werkplanung mitgemacht inklusive Ansichten und Schnitten. Aber auch in den Flächenberechnungen und der Mengenermittlung/Kalkulation. Fehlerfrei und transparent in den Auswirkungen der Planungsänderung in allen Bereichen.