Bauen im Bestand mit Bauset Architektur

Umbau, Sanierung, Anbauten - kurz Bauen im Bestand machen mittlerweile 70 % aller Investitionen im Hochbau aus. Hier zeigt Bauset seine umfassende Funktionalität. Hier ist nicht nur die reine Planung/Visualisierung/Kalkulation des Neubaus wichtig, sondern die Integration der geplanten Baumaßnahme in den vorhandenen Bestand.


Da zeigt es sich, dass Bauset kein "Neubau"-Zeichenprogramm ist, sondern alle Werkzeuge bietet, die für Planungsaufgaben im Bereich Bauen im Bestand einfach benötigt werden. Das geht von der Grundstückerfassung, der Bestandserfassung bis zur der Abgrenzung von Bestand, Abriss und Neubau.


Abriss - Bestand - Neubau verwalten


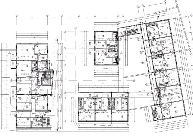
In Bauset Architektur werden Bestandsbereiche, Neubau- und Abrissbereiche separat verwaltet und im Plan eindeutig gekennzeichnet. So kann diese Planung auch sinnvoll kalkuliert werden. Da Zustände der Planung parallel gehalten werden können, werden Vorher-Nachher-Betrachtungen möglich. Natürlich können damit auch verschiedenen Alternativen verglichen werden.

Dabei wird mit den selben Datenbanken gearbeitet wie beim Neubau. Alleine die Bestands-/Abrisskennung führt nun dazu, dass sich die zeichnerische Darstellung und die kalkulatorische Behandlung der betroffenen Elemente automatisch ändert. Die Stammdaten werden also "schlank" gehalten.

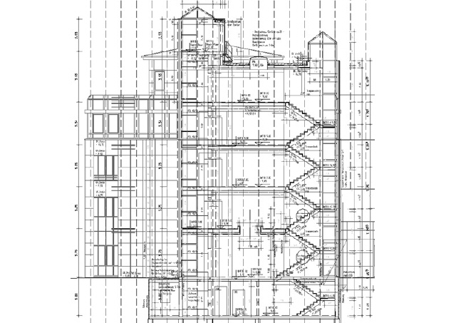
So können mit minimalem Aufwand geplante Anbauten an vorhandene Gebäude gezeigt werden, Aufstockungen, geänderte Dachstühle usw. Über die Bemusterung kann ganz fein justiert werden, welche Leistungen Bestand und welche Neuleistungen sein sollen. Die Aussenwand kann damit Bestand sein, das Wärmedämmverbundsystem mit dem neuen Putz jedoch die zu kalkulierende Neubauleistung.


Umbauten, Sanierungen, Anbauten machen heute den Großteil der Bauleistungen aus

Deshalb ist es gut, dass Bauset Architektur Ihnen die notwendigen Werkzeuge liefert.